Ár
195 000 000 Ft

Az Időtlen Elegancia Otthona: Mediterrán Rezidencia a Jövő Technológiájával a Ladánybenei úton 3.000nm-es telken

Kecskemét
Belsőnyír
Szobák száma
4
Alapterület
200 m²
Telekterület
3000 m²

eladó
családi ház

Mikor költözhető
Szintek száma
2
Ingatlan állapota
befejezetlen
Építés éve
Kilátás
kertre néző
Dohányzás
nincs megadva
Gépesített
nincs megadva
Kertkapcsolatos
igen
Kisállat hozható
nincs megadva
Lift
nincs megadva
Légkondicionáló
nincs megadva
Nincs gáz bekötve az ingatlanba
nincs bekötve
Pince
nincs megadva

Fenntarthatóság

Átlagos áramfogyasztás (kWh/hó)
210 kWh/hó
Fűtés
hőszivattyú
Energetikai tanúsítvány
A+
Szigetelés vastagság (cm)
15cm
Napelem
nincs megadva
Zöld otthon
igen
Panelprogramban részt vett
nincs megadva
Szigetelés
igen
Leírás

Az Időtlen Elegancia Otthona: Mediterrán Rezidencia a Jövő Technológiájával a Ladánybenei úton 3.000nm-es telken

Vannak ingatlanok, amelyek nem csupán négyzetméterekről, hanem egy életérzés kiteljesedéséről szólnak.

Engedje meg, hogy bemutassuk ezt a nettó 200 m²-es, minden részletében kifinomult, kétszintes rezidenciát, ahol a klasszikus mediterrán építészet nemes vonalai találkoznak a 21. századi mérnöki precizitással. Ez az otthon azok számára készült, akik az értékállóságot a modern fenntarthatósággal ötvözve keresik.

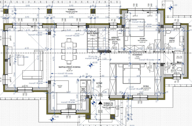
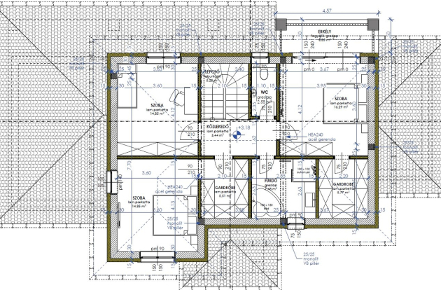
Az Élettér Harmóniája

A ház belső kialakítását a tágas, levegős terek és a természetes fény játéka határozza meg.

  • A Társasági Zóna: A földszint szívét egy impozáns méretű nappali-konyha-étkező egység alkotja, amely méltó helyszíne a családi vacsoráknak és a nívós baráti fogadásoknak. Két csendes hálószoba és a kiszolgáló helyiségek gondoskodnak a földszinti kényelemről.
  • A Privát Szféra: Az emelet az elvonulás szigete. Három tágas hálószoba, két dedikált gardróbszoba és elegáns fürdőszobai megoldások biztosítják a zavartalan pihenést minden családtag számára.

Fenntartható Luxus és Intelligencia

Az esztétikum mögött a legmodernebb technológia dolgozik az Ön kényelméért:

  • Láthatatlan Komfort: A hőszivattyús rendszer és a finom hőérzetet biztosító padlófűtés a legmagasabb energetikai igényeket is kielégíti.
  • Klimatizált Nyugalom: Mindkét szint teljes körű klimatizálása garantálja a tökéletes hőmérsékletet az év minden napján.
  • Intelligens Otthon: Igény esetén az ingatlan teljes okosház-vezérléssel is kérhető, amely nem csupán a kényelmét szolgálja, de az amúgy is rendkívül alacsony energiaigényt további 30%-kal mérsékli.

Megjelenés:

A külső megjelenés a mediterrán villák nemes egyszerűségét idézi. A tágas teraszok, az íves nyílászárók és a gondosan tervezett homlokzati világítás együttesen teremtenek olyan atmoszférát, amelybe minden nap megnyugtató érzés hazaérkezni.

Ez a rezidencia több, mint egy ház: egy nívós élettér, amely tükrözi tulajdonosa igényességét.


 További fontos információk:
A projekt teljesen kész kiviteli tervvel rendelkezik, tehát az építkezés azonnal megkezdhető, azonban a telek külterületi, tehát kifüggesztéses. Ennek megfelelően a hitellel történő finanszírozása nem lehetetlen, de nagyon körülményes.
A kiviteli terv minimálisan ugyan, de módosítható. Várható átadási idő 2027. vége.

Amennyiben úgy érzi, ez az ingatlan megfelel az Ön által képviselt értékrendnek, meghívjuk egy személyes megtekintésre, hogy a helyszínen is megtapasztalhassa a terek valódi dimenzióját.

Kérjen időpontot privát bemutatónkra!

Figyelem!
A hirdetésben megjelenített képek az építészmérnök által készített látványtervek alapján AI segítségével készültek.

(belső azonosító: 0367SAV)

Kép
Szucsán András
Kérdése van? Hívjon!

Szucsán András

Vagy kérjen visszahívást!
Mi érdekli leginkább?
Kulcsszavak
Elegancia
Rezidencia